Legend 412-2
Legend
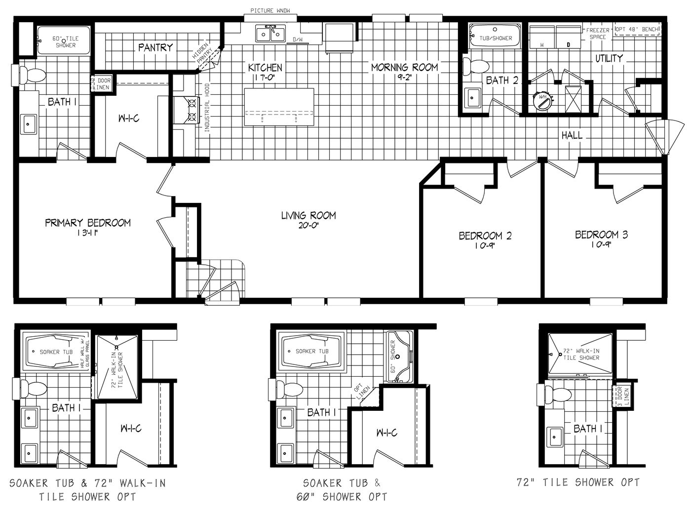
Floor Plan

Gallery
Tour
*Virtual tours may show discontinued materials. Please see decor guide for updated materials.
*The home series, floor plans, photos, renderings, specifications, features, materials and availability shown will vary by retailer and state, and are subject to change without notice.
